Реконструкция покрасочной камеры для сварных металлоконструкций
Реконструкция покрасочной камеры для сварных металлоконструкций | |
Размеры | |
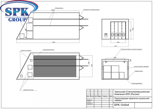
Внутренние размеры покрасочной камеры | 12366x5527x3682 мм |
Внешние | 14200x6000x3700 мм |
Направление потока воздуха | Сверху вниз |
Вытяжка | Через канал |
Канал | |
Число каналов | Два |
Колич-во решеток | Полнорешетчатый пол |
Материал | Стальные решетки |
Покрытие решеток | Оцинковка |
Наибольшая нагрузка (kg/m3) | 1.250 |
Кабина | |
Конструкция кабины | Существующее помещение |
Стенные панели | |
Наполнитель | Пенопласт |
Толщина листов (в мм) | 0,5 |
Структура окон в дверях | Окна, имеющие овальную форму, с теплоизоляционной резиной |
Основная дверь | |
Габариты (Шир.*выс.) | 3300х3220 (ШхВ) |
Число дверей | 1 ворота |
Структура дверей | Распашные ворота |
Крыша | |
Материал панелей | Панели EPS |
Модель фильтра на потолке | SP-600 G |
Конструкция потолка | Стальной каркас (из D8)
|
Структура потолка | Прямая |
Система освещения окрасочного комплекса | |
Освещение верхнее | Система потолочного освещения 4 шт |
Нижнее освещение | Система бокового освещения |
Направление света | Вертикальное |
Каркас для крепления светильников | - |
Общая мощность освещения | Рекомендуемая мощность 3.460 Вт |
Группы притока/ вытяжки | |
Расположение генераторов | По двум сторонам |
Материал каркаса групп | Панели RockWool |
Регулировка воздушных потоков | Электрической заслонкой |
Число генераторных групп вытяжки | По две группы |
Центробежный 2-ной вентилятор в приточной группе | |
Модель | Siemens 4.2L |
Производит-ность (в м³/ч) | 41 000 |
Мощ-сть | 4х4кВт |
Управление вытяжным потоком воздуха | Используя ручную заслонку |
Давление | 820 Па |
Центробежный вентилятор 2-ного действия с ручной заслонкой в группе вытяжных фильтров | |
Модель | Siemens 450-H |
Производит-ность (в м³/ч) | 40 000 м3/ч |
Мощ-сть | 2х5,5 кВт |
Давление | Давление 720 Па. |
Система фильтрации в окрасочном комплексе | |
Фильтр притока | Потолочный фильтр и основной фильтр |
Вытяжной фильтр: | Фильтры: угольный, стекловолоконный |
Подогрев воздуха | |
Теплообменник | Дизельный |
Количество | 2 теплообменника |
Производительность | 460 000Кал/час |
Система контроля технологических режимов в оск | |
Панель управления оснащается | Окрашивание; температурное распыление с нарастанием;; регулировка времени сушки; выключатель освещения; сушка, индикатор отказа; термостат; чрезвычайная остановка; температурный ограничитель, метр часов; выключатель питания; |
Управление при помощи | Реле |
Питание двигателя | 3Х380 Вольт и 50Гц |
Питание освещения | 220Вольт 50Гц |
Общая мощность 26кВт | |
Габариты ОСК





















































