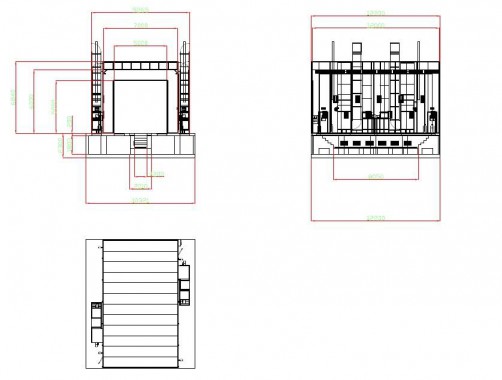
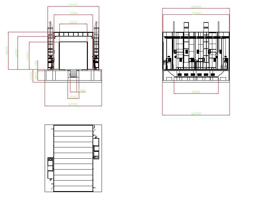
Промышленная подготовительная камера для спецтехники SPK-12.7.6
Общие характеристики | |||||||
Размеры внутренние | 12000x 7000х 6000 мм | Размеры. внешние | 12200x 8710x 6840 мм | ||||
Количество секций | 1 | Приямок | 11000х 1200х 1300 мм | ||||
Поток воздуха | Направляется вниз | Вытяжка | Проходит сквозь пол | ||||
Вытяжка | |||||||
Число каналов в данной вытяжке | 2 канала | Размер каждого канала | 2250 х 12000 mm | ||||
Число рядов решеток | 3 ряда | Описание материала решеток | Каждая решетка представляет собой 10-мм скрученную арматуру стальную, а также плоские полосы, произв. из стали | ||||
Покрытие | Оцинкованное | Нагрузка max на решетку | 1.000 кг/ кв м | ||||
Описание кабины | |||||||
Каркас | Силовой каркас | Материал конструкции | Сталь | ||||
Главная дверь. 2 шт | |||||||
Тип | Рулонный | Размеры ворот | 7000х5000 (ШхВ) | ||||
Материал | Комбинированный: алюминий + пластик | Разделение камеры | Не разделяется | ||||
Структура окон | Прямоугольные, легкосбрасываемые | Уплотнение | Резина, а также теплоизоляция | ||||
Панели в стенах | |||||||
Толщина панели (mm) | 60 | Толщ. стали (mm) | 0,6 | ||||
Наполнитель в панелях | Вата минерал. | Описание наполнителя панелей | Негорючий и с антисептиком | ||||
Плотность | 32.0 кг/м 3 |
|
| ||||
Дверь сервисная (аварийная) | |||||||
Количество дверей | 2 шт. | Размер | 800х2.000 (ШВ) | ||||
Расположение | 1 - справа, 1 - слева | Структура окна | Прямоугольное со скругленными углами и резиновым уплотнением | ||||
Крыша. | |||||||
Структура | Крыша прямая, в основе - сэндвич-панели | Конструкция стальная | Стальной силовой каркас | ||||
Материал конструкции потолка, где крепятся фильтры потолка | Каркас из стали | Каркас покрывается | порошковой покраской | ||||
В основе панелей крыши | Минерал. вата | Марка фильтров потолка | SP - 600 G | ||||
Освещение 1.100 Люкс | |||||||
Верхний свет (45 град-в) | 4 лампы по 36 Вт в каждом из 16 плафонов
| В основе каркаса крепления светильников | Сталь | ||||
Боковой свет (в стеновых панелях) | 2 лампы по 18 Вт в каждом из 22 плафонов | Выпрямитель | I действие на II лампы | ||||
Боковой свет (встроенный в приямок) | 12 плафонов Х2 лампы по 18 Вт |
|
| ||||
Мощ-сть общ. | 1.458Вт |
|
| ||||
Хар-ки групп притока/ вытяжки | |||||||
Генератор. Расположение | С 1-ой стороны | Конструкция группы | Квадратная, в основе - сталь | ||||
Обшивка гр. притока и вытяжки | Сэндвич-панели | Метод регулировки | Автоматическая заслонка с регулируемым приводом | ||||
Число генераторов притока | 2 генератора | Число генераторов вытяжки | 2 | ||||
Приток имеет направление | Сверху вниз регулировкой направления | В вытяжке воздушный поток имеет направление | Вверх | ||||
Приточный II-ной вентилятор |
| Вытяжной центробежный II-ной вентилятор |
| ||||
Искро- и взрывозащищенное исполнение (ЕХ) | Искро- и взрывозащищенное исполнение (ЕХ) | ||||||
Значение мощ-сти: 7,5 кВт | Значение мощ-сти: 7,5 кВт | ||||||
Произв-сть вентилятора: 64 000 м куб/ч | Производит-сть вентилятора: 64000 м куб/ч | ||||||
Давление 760Па. | Давление 731Па. Оборудуется ременным приводом | ||||||
Управление и регулировка притока воздуха | Автоматической заслонкой | Управление и регулировка вытяжного потока воздуха | Автоматической заслонкой | ||||
Подогрев воздуха | |||||||
Максимальная тепловая нагрузка без рекуператоров | 1059 кВт | Максимальная тепловая нагрузка при наличии рекуператоров | 635 кВт | ||||
Способ | Горелка дизельная | Количество теплообменников | два | ||||
Модель горелок | RL 34 MZ | Производительность горелок | 2 х 395 кВт (790 кВт) | ||||
Теплообменник | в конструкции: антивзрывчатое отверстие +мультицикл | ||||||
Фильтрационная система камеры | |||||||
Конструкция фильтра в притоке | Основной карманчатый фильтр; фильтр потолка | Конструкция фильтра вытяжки | Стекловолоконный, также угольный фильтры, краскофильтр и кассетный фильтр | ||||
IP 65. Система управления технологическими режимами. | |||||||
Описание панели управления - 2 ед. | Окрашивание; метр часов; тепловое распыление возрастающее; сушка до 50-ти градусов, регулировка сушки с управлением временем; выключатели: света/ | ||||||
Управляется | реле | ||||||
Описание системы пожаротушения | |||||||
Порошковая | Работает в автоматическом режиме | ||||||
Питание | |||||||
Питание двигателя (Вт/ Гц) | 3х 380 / 50 | Питание освещения (Вт/ Гц) | 220 / 50 | ||||
Мощность общая электрическая - 32кВт; | |||||||
Вытяжка: Через пол
Внутренние габариты камеры (ДхВхШ): 12000x 7000х 6000 мм
Внешние габариты (ДхВхШ) : 12200x 8710x 6840 мм
Габариты ОСК























