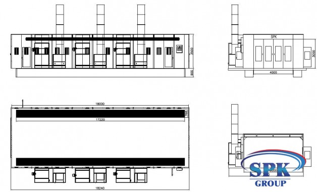
Окрасочно сушильная камера для труб SPK 18х6х3
Габариты камеры | |||||
Внутренние размеры, мм | 18000x6000х3000 | Внешние размеры, мм | 18160x6160x3450 | ||
Поток воздуха | С направление –вниз | Вытяжка | Ч/з пол | ||
Вытяжка | |||||
Кол-во каналов | 2 шт. | Размер канала, mm/канал | 16000*760 | ||
Решетки, число рядов | 2 ряда | Материал решеток | стальные плоские полосы со скрученной стальной арматурой толщ. 10 мм | ||
Покрытие решеток | Оцинковка | Нагрузка максимал. | 1.000 кг/м2 | ||
Кабина | |||||
Конструкция | Каркас силовой | Наличие стальной конструкции | v | ||
Главная дверь | |||||
Количество дверей в камере, шт. | 2 | Р-ры ворот, (ШхВ) | 4000х3000 | ||
Материал | Оцинкованная сталь | Конструкция окон | сервисные | ||
Разделение камеры | - | Уплотнение | Резина теплоизоляционная | ||
Стеновые панели | |||||
Толщ. панели | 80мм | Толщина стали | 0.6мм | ||
Наполнитель панелей, плотность заполнения | Вата минеральная/ 36 кг/куб.м | Св-ва наполнителя | Пропитан антисептиком, негорючий | ||
Плотность заполнения | 36 кг / куб.м |
|
| ||
Сервисная дверь | |||||
Кол-во, шт. | 2 | Размеры дверей(ШхВ) | 800 *2.000 | ||
Расположение | Справа | Окно | сервисное | ||
Крыша | |||||
Форма и состав | Прямая, сэндвич панели | Каркас | Стальной силовой | ||
Конструкция потолка с потолочными фильтрами | сталь D8 | Покрытие каркаса | Покраска порошковая | ||
Материал панели крыши | Вата минеральная | Потолочные фильтры | Модель фильтров SP-600G | ||
Осветительная система камеры | |||||
Верхний свет (45 гр.) | 24 плафона х 4 лампы = 104 лампы, мощность лампы 36Вт | Каркас для крепления светильников | из стали | ||
Нижний свет (встроен в панели) | 24 плафона х 2 лампы = 48 ламп, мощность лампы18Вт |
|
| ||
Выпрямитель | 1 действие Х 2 лампы |
|
| ||
Характеристики приточных и вытяжных групп | |||||
Расположение генератора | Слева | Исполнение генераторной группы | Квадратная конструкция, материал - сталь | ||
Обшивка обеих групп | Каркас из панелей | Регулирование потоков воздуха | Автоматической заслонкой | ||
Количество генераторов притока, шт. | 3 | Количество генераторов вытяжки, шт. | 3 | ||
Поток воздуха притока направлен | Сверху вниз | Воздушный поток вытяжки направлен | Снизу вверх | ||
Хар-ки вентилятора притока | Центробежный, двойного действия | Хар-ки вытяжного вентилятора | Центробежный, двойного действия | ||
Пр-во Siemens | Пр-во Siemens | ||||
Мощность вентилятора 2х4 кВт | Мощность вентилятора 1х5,5 кВт | ||||
Производительность вентилятора: 24 000 м³/час | Производительность вентилятора: 24 000 м³/час | ||||
Давление 780 Па. | Давление 726 Па. | ||||
Управление притоком воздуха | Автоматическая заслонка | Управление вытяжным воздушным потоком | Ручная заслонка | ||
Система подогрева в камере | |||||
Способ подогрева | -Газовая горелка - дизельная горелка, -вода, - пар | Количество 2 шт. | 3 теплообменника | ||
Модель горелок | R 5 | Производительность горелки | 260 кВтх3 | ||
Конструкция теплообменника | Мультицикл; антивзрывчатое отверстие | ||||
Фильтрационная система | |||||
Фильтр притока | Основной фильтр формы кармана + Потолочный фильтр | Фильтр вытяжки | В конструкцию входят стекловолоконный и угольный фильтры | ||
Система контроля технологических режимов. IP 65 | |||||
Способ управления | Реле контроллер | ||||
Панель управления | Режимы: 1. - Окрашивание; 2. - возрастающее температурное распыление; 3. – сушка с возможностью регулирования времени, 4. - выключатель освещения; 5. - индикатор отказа; 6. - термостат; 7. - метр часов; 8. - выключатель питания; 9. - чрезвычайная остановка; | ||||
Питание | |||
- двигателя | - | Питание освещения | 220 Вт/ 50Гц |
Общая мощ-сть 45 кВт Рабочая мощ-сть 24 кВт | |||
Внутренние габариты камеры (ДхВхШ): 18000х6000х3000
Внешние габариты (ДхВхШ) : 18160х6160х3450
Габариты ОСК








