Камера окраски уличного типа совмещенная с дробеструйной SPK 36
Описание камеры окраски
Размеры | ||||||||||||
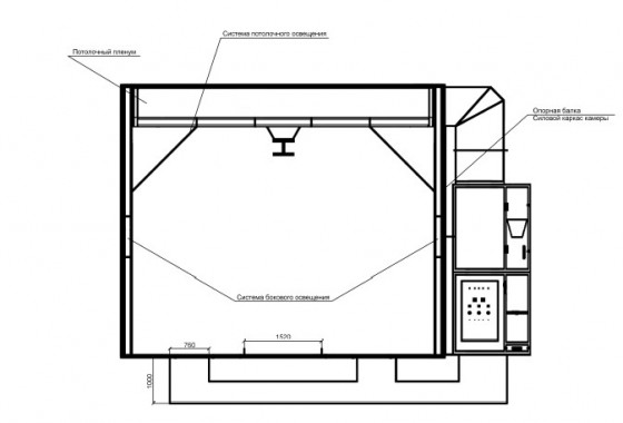
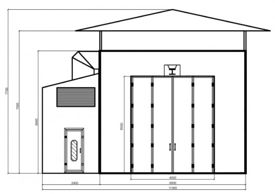
Внутренние размеры (mm) | 18000x6500x6000 Система разделения камеры на два блока, каждый по 18 метров. 1 камера - покрасочная 2-ая дробеструйная | Внешние габариты | 18400x11300x7700mm ОСК 60000x7500x7700mm Конструкция
| |||||||||
Направление воздуха | К полу | Вытяжка | Через два канала в обеих камерах итого 4 шт | |||||||||
Боковая вытяжка | ||||||||||||
Кол-ство каналов | два канала | Размер канала | 16200х760mm/канал | |||||||||
Кол-ство рядов решеток | два | Материал решеток | Сталь, плоские | |||||||||
Покрытие решеток | Оцинкованное | Наибольшая нагрузка (kg/m3) | 1200 | |||||||||
Кабина | ||||||||||||
Форма кабины | Выпуклая | Каркас | Силовой металлический каркас | |||||||||
Навес и утепленные помещения для данной камеры | ||||||||||||
Навес и монорельсовая система.
| Конструкция из стали с крышей, размеры 60000x7000x7700 мм
| 4 электропомещения, агрегатная (установка блоков для подготовки воздуха, систем фильтрации, нагрева воздуха, а также автоматической системы порошкового пожаротушения) 4600х2400х5400 мм Сэндвич-панели 150 мм | Система автоматики Окрасочно-сушильной камеры, источник бесперебойного питания, автоматика системы пожаротушения, | |||||||||
Монорельс | 2 КАНАТНЫЕ ЭЛЕКТРИЧЕСКИЕ ТАЛИ, уровень Пыле- и влагозащиты IP 55, Пожаробезопасное исполнение ПI Грузоподъемность 5т | Максим. нагрузка на 3.200 мм
| 12,3 тонн
| |||||||||
Главная дверь | ||||||||||||
Конструкция | Распашные ворота | Габариты дверей (ШхВ) | 5000х6000 | |||||||||
Материал | Оцинкованная сталь |
|
| |||||||||
Стеновые панели | ||||||||||||
Толщина Панелей | 150мм | Толщина стали | 0,55мм | |||||||||
Заполнение | Минеральная вата | Плотность заполнения кг/м2 | 19 | |||||||||
Сервисная дверь | ||||||||||||
Число дверей | 5 | Р-ры дверей (ШхВ) | 800х2000 | |||||||||
Расположение | По обеим сторонам | Антипаниковая система - аварийный выход с освещением |
| |||||||||
Крыша |
| |||||||||||
Форма | Прямая | Наличие стальной конструкции | + | |||||||||
Потолок | Каркас из стали D8 | Разрывная конструкция | 4 шт. легко сбрасываемые панели | |||||||||
Изготовление панелей крыши | Из минеральной ваты | Фильтр потолка | SP-600G | |||||||||
Осветительная система в камере | ||||||||||||
Система верхнего освещения | 20 плафонов, в каждом 4 лампы = 160 ламп по 36Вт мощностью | Каркас крепления для светильников | Сталь | |||||||||
Система нижнего освещения | 18 плафонов х 4 лампы = 144 лампы мощ-стью 36 Вт | Аварийная система освещения | 26 ламп мощностью 36 Вт | |||||||||
Выпрямитель | действие одно для 2 ламп | Мощ-сть освещения общая | 5 860 Вт | |||||||||
Характеристика Группы притока и вытяжки | ||||||||||||
Обшивка обеих групп | каркас обеих групп выполнен из панелей с заполнением минеральной ватой | Воздушный поток | Регулировка пневматической заслонкой | |||||||||
Кол-ство генераторов притока | два | Кол-ство генераторов вытяжки | два | |||||||||
Вентилятор притока | Параметры двойного центробежного вентилятора | Вытяжной вентилятор | Параметры двойного центробежного вентилятора | |||||||||
Пр-во Siemens | Пр-во Siemens | |||||||||||
Общая произв-ность: 92 000 м³/час | Общая произв-ность: 92 000 м³/ч | |||||||||||
Давление 700Па. | Давление 700Па. | |||||||||||
Система подогрева воздуха | ||||||||||||
Способ подогрева | Водяной калорифер + Газовая горелка | Количество | 2 теплообменника с догревателем | |||||||||
Модель | RS44 | Произв-ность горелки | До 720-ти кВт * 2 Расход 80-440 куб.м/час | |||||||||
Конструкция теплообменника | Мультицикл+ антивзрывчатое отверстие | Рекуператор | Имеется | |||||||||
Система фильтрации в камере | ||||||||||||
Приточный фильтр | Основной фильтр в форме кармана; Потолочный фильтр | Вытяжной фильтр | Стекловолоконный фильтр, угольный фильтр | |||||||||
Контроль технологических режимов | ||||||||||||
Управление в камере | Реле | |||||||||||
Панель управления | Режим окрашивания; индикатор отказа; возрастающее тепловое распыление ; сушка до 60-ти град. с регулированием времени; выключатель освещения и питания; термостат; метр часов; чрезвычайная остановка; | |||||||||||
Перемещение операторов | ||||||||||||
Подъемно-передвижная лифт площадка | 2 шт | Питание (вольт) | 380 | |||||||||
Питание | ||||||||||||
Питание двигателя (Вольт) | 3х380/ 50Гц | Питание освещения (Вольт) | 220/ 50Гц | |||||||||
Общая мощность 78 кВт | ||||||||||||
Буран 50 Система пожаротушения | ||||||||||||
Срабатывание в автоматическом режиме | Порошковая система пожаротушения + система сигнализации | |||||||||||
Описание дробеструйной камеры
Размеры | ||||||||||||
Внутренние | 18000x6500x6000 mm Система разделения камеры на два блока по 18 метров, 1-ая покрасочная, 2-ая дробеструйная | Внешние | 18400x8900x7700 mm DB 60000x7500x7700 mm Конструкция | |||||||||
Поток воздуха | К полу | Вытяжка | Через два канала, которые расположены в каждой камере, итого 4 шт | |||||||||
Вытяжка ч-з пол | ||||||||||||
Число каналов в вытяжке | 2 канала | Габариты канала для сбора дроби | 17100х1120 мм/канал | |||||||||
Число рядов решеток | 2 ряда | Материал решеток | плоские стальные | |||||||||
Покрытие решеток | Оцинкованное | Max нагрузка | 1.200kg/m3 | |||||||||
Кабина | ||||||||||||
Форма кабины | Выпуклая | Наличие стальной конструкции | Каркас силовой металлический | |||||||||
Навес +утепленные помещения для Дробеструйной камеры | ||||||||||||
Навес с монорельсовой системой.
| Стальная конструкция с крышей, габариты 60000*7000*7700 mm
| 1 электропомещение, агрегатная (в т.ч установка, фильтровентиляционный агрегат подготовки воздуха, фильтровальных систем, а также систем нагрева воздуха, автоматической системы порошкового пожаротушения) размер 11480х2400х5400 мм Сендвич-панель 150 мм | Секционный фильтр патронного типа, Агрегатный блок 2 Дробеотделителя лабиринтного типа, Защитные костюмы для маляра-оператора (включая спилковый комбинезон, шлем и перчатки) – 2 комплек. Напорные рукава – 20 м. 2 сопло | |||||||||
Монорельс | -2 КАНАТНЫЕ ЭЛЕКТРИЧЕСКИЕ ТАЛИ (под пылевые камеры) -пыле-влагозащита IP 55, -Пожаробезопасное исполнение П I -Грузоподъемность 5т | Максимал.нагрузка на 3200мм
| 12,3 т
| |||||||||
Главная дверь | ||||||||||||
конструкция | Распашные ворота | Размеры дверей (ШхВ) | 5000х6000 | |||||||||
Материал | сталь с оцинковкой | Резина толщ. 6 мм |
| |||||||||
Стенные панели | ||||||||||||
Толщина Панели | 150 мм | Толщина стали | 0,6мм | |||||||||
Материал наполнения | Минеральная вата | Плотность заполнения | 19 кг/кв.м | |||||||||
Сервисная дверь | ||||||||||||
Число сервисных дверей | 2 | Размеры дверей (Ш х В) | 800х2000 | |||||||||
Расположение | С двух сторон | Антипаниковая система с освещенным аварийным выходом | Резина толщ. 6 мм | |||||||||
Крыша |
| |||||||||||
Форма крыши | Прямая | Конструкция, выполненная из стали | Да | |||||||||
Конструкция потолка с креплением фильтров | из стали D8 |
|
| |||||||||
Материал исполнения крыши | Минеральная вата |
|
| |||||||||
Освещение в Дробеструйной камере | ||||||||||||
Верхний свет | 28 плафонов Х 2 лампы Х 36Вт | Каркас крепления светильников | Стальной каркас | |||||||||
Нижний свет | - | Аварийная система освещения | 6 ламп Х 36 Вт | |||||||||
Выпрямитель | 1 действие для пары ламп |
|
| |||||||||
Группа подготовки воздуха | ||||||||||||
Каркас групп притока и вытяжки | Каркас моноблока выполнен из стальных панелей | Регулировка воздушных потоков | Пневматическая заслонка | |||||||||
Количество генераторов притока | Моноблок | Количество генераторов вытяжки | Моноблок | |||||||||
Вентилятор притока | Центробежный вентилятор двойного действия | Вытяжной вентилятор | Центробежный вентилятор двойного действия | |||||||||
Siemens | Siemens | |||||||||||
Производительность общая (м3/час): 30 000 | Производительность общая (м3/час): 30 000 | |||||||||||
Давление 700Па. | Давление 700Па. | |||||||||||
Система регенерации дроби в камере | ||||||||||||
Метод регенерации | Сепаратор | Агрегатный блок Дробеотделитель лабиринтного типа. Вибросепаратор. 2 шт Напорные рукава диамет. 32 мм, сопло Вентури диаметром 8 мм., Система дробедвижения | Р-р ячеек сита 2 мм. Бункер-накопитель об. 200л. Напорный агрегат 200 л DBS-200. Вентили дистанционного управления. | |||||||||
Система сбора дроби | ||||||||||||
Пол скребковый | Пол скребковый, оснащенный грейферными скребками. Линейка сбора абразива установлена вдоль стен камеры. Высота пола составляет180мм. Ширина линейки составляет 1,12м. Решетчатый настил пола. Пневматический привод скребков (на каждую линейку). | Фильтр вытяжки |
| |||||||||
Система контроля технологических режимов | ||||||||||||
Управление | Реле | |||||||||||
Панель управления |
| |||||||||||
Система перемещения маляров-операторов | ||||||||||||
Помост полнорешетчатый |
|
|
| |||||||||
Питание | ||||||||||||
Питание двигателя | 3 по 80 вольт 50Гц | Питание освещения | 220вольт и 50Гц | |||||||||
Общая мощность 42кВт | ||||||||||||
Вытяжка: через 2 канала в обеих камерах - итого 4 шт
Внутренние габариты камеры (ДхВхШ): 18000x6500x6000 мм
Внешние габариты (ДхВхШ) : 18400x11300x7700 мм
Габариты ОСК









