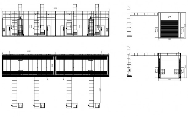
Покрасочно-сушильная камера проходного типа SPK-24.5.5 г. Набережные Челны
Параметры окрасочно-сушильной камеры проходного типа
Размеры | |||||
Внутренние размеры | 24100x5000х5000 mm | Внешние размеры | 24300x5120x5600 mm | ||
Количество независимых секций | 2 |
|
| ||
Воздушный поток направляется | Направление вниз | Вытяжка | Ч-з пол | ||
Вытяжка | |||||
Каналы | 4 канала | Габариты канала | 11/480*760 mm | ||
Ряды решеток | 4 ряда | Исполнение | Скрученная арматура из стали толщ. 10 мм + стальные полосы плоской формы | ||
Покрытие | Оцинковка | Нагрузка макс. | 1.000 кг / м2 | ||
Кабина | |||||
Конструкция | Силовой каркас | Конструкция стальная | Присут. | ||
Главная дверь. 3 шт | |||||
Тип | Подъемно-секционная | Размеры ворот | 4000х4000 (ШхВ) | ||
Материал исполнения | Сталь оцинкованная | Разделение камеры | Нет, без окон | ||
Стеновые панели | |||||
Толщина | 60 мм. | Толщ/ стали | 0,60 мм | ||
Наполнитель в каждой панели | Вата минеральная | Описание наполнителя в панели | Негорючий с пропиткой антисептиком с плот-стью заполнения 32,0 кг/ куб. м | ||
Дверь сервисная | |||||
Кол-во дверей | 4 шт. | Габариты (мм) (ШВ) | 800 х 2000 | ||
Расположение | 2 справа, 2 слева | Описание | Окно овальной формы с прослойкой теплоизоляционной резины | ||
Крыша | |||||
Описание | Прямая, в основе крыши - сэндвич-панели | Наличие стальной конструкции | Стальной силовой каркас | ||
Описание каркаса с закрепленными на нем фильтрами | стали D8 | Покрытие каркаса | Каркас покрывается порошковой покраской | ||
Исполнение | Минеральная вата | Наименование фильтра потолка | SP-600G | ||
Осветительная система в SPK-24.5.5 | |||||
Потолочный свет (45 гр) | 32 плафона Х4 лампы = 128 ламп Х36 Вт | Материал каркаса | Сталь в основе | ||
Панельный свет | 32 плафона Х 2 лампы = 64 лампы Х18 Вт |
|
| ||
Выпрямитель | 1 действие Х две лампы | Общая мощность | 5760 Вт | ||
Описание приточно-вытяжой группы | |||||
Генератор | Слева | Конструкция генераторной группы | Стальная квадратная | ||
Обшивка | В основе каркаса - EPS панели | Управление воздушными потоками | Автоматической заслонкой | ||
Количество генераторов притока | 4 шт | Количество генераторов вытяжки | 4 шт | ||
Направление воздушного потока в камере | Вниз | Направление потока воздуха в вытяжке | Вверх | ||
Приток: центробежный двойной вентилятор | Искро-взрывозащищенное исполнение (ЕХ) | Вытяжной центробежный двойной вентилятор | Искро-взрывозащищенное исполнение (ЕХ) |
Значение мощности: 7,5 кВт | Значение мощности: 7,5 кВт | ||
Значение производительности: 96000 м³/час | Значение производительности: 96000 м³/час | ||
Давление 760Па. | Давление 731Па. Ременной привод | ||
Регуляция притока | Автоматическая заслонка | Регуляция вытяжного потока воздуха | Ручная заслонка |
Описание системы отопления | |||
Способ
| Горелка: дизельная, газовая. Нагрев: водяной или паровой нагрев | Число теплообменников | 4 шт. |
Модель газовых горелок | R5/ R5G | Производительность горелок | 920кВт |
Структура теплообменника | Мультицикл; антивзрывчатое отверстие | ||
Мощность (без рекуператора) | 920кВт | Мощность (с рекуператором) | 480кВт |
Фильтрационная система | |||
Конструкция приточного фильтра | Основной фильтр карманчатой формы + Потолочный | Конструкция фильтра вытяжки | В системе: угольный и стекловолоконный |
Управление технологическими режимами IP 65 | |||
Управляющая панель | Режимы: окрашивание, тепловое распыление с возрастанием, сушка до 60-ти гр-в, регулирование времени фазы сушки, выключатель осветительной системы, индикатор отказа, термостат, аварийная остановка, метр часовой | ||
Регулировка и управление | Контроллер реле | ||
Система питания | |||
Пит. двигателя | 3х 380 Вт/ 50Гц | Пит. освещения | 220 Вт/ 50Гц |
Общая мощ-сть 15 - 68 кВт | |||
Габариты ОСК




























































