Тупиковая окрасочно-сушильная камера для вагонов и локомотивов SPK-32.7.7 РОССИЯ
Размеры | ||||||||
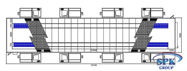
Внутренние (mm) | 32000x7000x7000 | Внешние (mm) | 32 144x9 646x7 600 | |||||
Поток воздуха | С направлением сверху вниз | Вытяжка | Ч/з два канала | |||||
Канал | ||||||||
Количество | 2 канала | Р-р канала | 27 600х760 mm/канал | |||||
Кол-во решеток | По два ряда | Материал | стальные плоские полосы+скрученная стальная арматура толщ. 10мм | |||||
Покрытие | Оцинкованное | Наибольшая нагрузка | От 500 до 800 кг/м3 | |||||
Кабина окрасочной камеры | ||||||||
Конструкция | Выпуклая | Конструкция из стали | + | |||||
Главная дверь | ||||||||
Количество створок | Одни рольставни | Размер | 5.000х5.600 (Шир.хВыс.) | |||||
Материал выполнения | Оцинкованная сталь |
|
| |||||
Структура окон |
|
|
| |||||
Стенные панели | ||||||||
Толщина | 70 mm | Толщина стали | 0,5 mm | |||||
Наполнитель панелей | Минеральная вата |
|
| |||||
Плотность заполнения | 19грамм/м³ |
|
| |||||
Сервисная дверь | ||||||||
Число дверей | 2 | Р-ры дверей (ШхВ) | 800х2.000 | |||||
Расположение | Справа и слева | Структура окон в двери | окна в форме овалов с теплоизоляционной резиной | |||||
Крыша | Материал исполнения крыши - стальные цинкованные пластины | |||||||
Структура | Прямая | Оснащение стальной конструкцией | Да | |||||
Конструкция потолка с закрепленными на нем потолочными фильтрами | Каркас производится из D8 стали |
|
| |||||
Материал панели на крыше | Минеральная вата | Потолочные фильтры | Модель SP-600G | |||||
Освещение в камере SPK | ||||||||
Верхний свет | 40 плафонов по 4 лампы, в итоге 160 ламп мощ-стью по 36Вт | Каркас крепления для светильников | Выполняется из стали | |||||
Нижний свет | 34 плафона, каждый из которых оснащен 4-мя лампами, всего136 ламп по 36 Вт |
|
| |||||
Выпрямитель | для двух ламп одно действие |
|
| |||||
Общая мощность освещения | 10.656Вт |
|
| |||||
Группы притока/ вытяжки в камере (воздухообмен 120 крат/час) | ||||||||
Положение генератора | С правой стороны | Конструкция генераторной группы фильтров | Квадратная конструкция, производится из стали | |||||
Обшивка групп приточных/ вытяжных фильтров | каркас группы вытяжных фильтров/ приточной группы из EPS панелей
| Регулирование воздушных потоков в | Пневматическая заслонка | |||||
Кол-во генераторов притока | 8 | Кол-ство генераторов вытяжки | 8 | |||||
Параметры вентилятора притока | Центробежный вентилятор, имеющий 2ное действие | Параметры вытяжного вентилятора | Центробежный вентилятор, имеющий 2йное действие | |||||
Модель вентилятора Siemens 4.5M | Модель вентилятора Siemens-710-H | |||||||
Мощ-сть 2х5,5кВт | Мощ-сть 1х7,5кВт | |||||||
Производит-ность: 188 000 м³/ч | Пр-сть 186 000 м3/ч | |||||||
Давление 780Па. | Давление 426Па. С ременным приводом | |||||||
Управление притоком воздуха |
| Управление вытяжным потоком воздуха | Оборудуется ручной заслонкой | |||||
Подогрев воздуха | ||||||||
Устройство для подогрева | Дизельная/газовая горелка, паровой/водяной теплообменник, с функцией догрева | Кол-во | 8 теплообменников | |||||
Модель | R5 | Произв-нсть горелки | 260.000 кКал/ч | |||||
Структура теплообменника включает | антивзрывчатое отверстие; Мультицикл; |
|
| |||||
Дымоход | Отсут. | Материал дымохода | Отсут. | |||||
Фильтрация | ||||||||
Фильтр притока включает | Основной фильтр имеет форму кармана; Потолочный фильтр | Фильтр вытяжки включает | Стекловолоконный и угольный фильтры | |||||
Система контроля технологических режимов | ||||||||
Способ управления | Реле |
|
| |||||
Панель управления в камере включает: | Окрашивание; температурное распыление с нарастанием; сушка до 80 градусов, индикатор отказа; регулировка времени сушки; термостат; выключатель питания; чрезвычайная остановка; метр часов; выключатель освещения; | |||||||
Система перемещения операторов-маляров | ||||||||
Лифт площадка | 2 Подъемно-передвижные лифт площадки | Питание | 380 вольт | |||||
Внутренние габариты камеры (ДхВхШ): 32000x7000x7000
Внешние габариты (ДхВхШ) : 32144x9646x7600
Габариты ОСК





