Малярная камера для грузовых автомобилей SPK-17.6.5
Габариты камеры | |
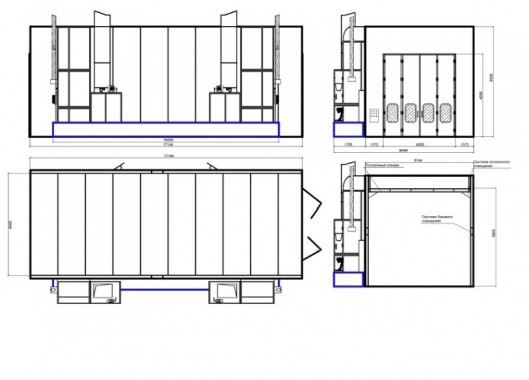
Внешние | 17000*6600*5600 мм |
Внутренние габариты | 17144*8494*6000 мм |
Направление воздушного потока | Вниз |
Вытяжка | Проходит через канал |
Кабина камеры SPK | |
Конструкция | Прямая |
Стальная конструкция | Присутствует |
Напольные решетки | |
Число каналов | 1 |
Размер канала | 770/13000мм |
Число решеток в каждом канале | По 1-му ряду |
Материал/покрытие решеток | Сталь/оцинковка |
Максимальное усилие | 500-800 кг/м3 |
Въездные двери | |
Размер дверей (ШхВ) | 4000х4000 |
Структура | Ворота распашные |
Число | 1 |
Сервисная дверь | |
Размер дверей(ШхВ) | 800х2000 |
Число | 2 |
Структура окон в сервисной двери | Овальные с проложенной теплоизоляционной резиной |
Стеновые панели | |
Структура | Каждая панель оббивается стальными пластинами с обеих сторон, между этими пластинами имеется заполнение теплоизоляционной пеной |
Крыша | |
Материал | Стальные пластины с оцинковкой |
Структура | Прямая |
Конструкция | Стальная |
Конструкция потолка, оборудованного потолочными фильтрами | Каркас выполнен из стали D8
|
Панели крыши | Из минеральной ваты |
Фильтры потолочные | SP-600G |
Система освещения | |
Нижний свет | 24 плафона*4 лампы, итого 208 ламп, мощность 36 Вт |
Верхний свет | 20плафонов*4 лампы, итого 304 лампы, мощность 36Вт каждой лампы |
Направление | Вертикальный |
Каркас | Отсутствует |
Действие выпрямителя | Одно действие для 2-х ламп |
Мощность системы освещения (совокупная) | 6 432 Вт |
Группы притока и вытяжки | |
Конструкция генераторной группы | Квадратная, материал - сталь |
Расположение генераторов | С обеих сторон |
Материал каркаса обеих групп | Панели Rock Wool |
Воздушные потоки | Регулируются пневматической заслонкой |
Число генераторных групп притока/вытяжки | 2/2 |
Характеристики вентилятора притока | |
Центробежный вентилятор имеет II-ное действие | |
Модель вентилятора | Siemens 4.2L |
Мощность | 2х4кВт |
Производительность | 63 000 м³/ч |
Давление | 726 Па |
Характеристики вытяжного вентилятора | |
Модель вентилятора | Siemens -450-H |
Мощность | 1х5,5кВт |
Производительность | 63 000 м3/ч |
Давление | 710 Па |
Подогрев воздуха в покрасочной камере | |
Характеристики горелки: | Газовая, дизельная, паровой, либо водяной калорифер, а также электро |
Модель | RS5; одноступенчатая |
Мощность | 420кВт |
Число горелок | 2 |
Фильтрация воздуха в малярной камере | |
Характеристики фильтра притока | Основной фильтр карманной формы; Потолочный фильтр |
Характеристики фильтра вытяжки | Угольный и стекловолоконный фильтры |
Система контроля | |
Панель управления включает: | Окрашивание; нарастающее температурное распыление; сушка; регулировка фазы сушки; Выключатель освещения; метр часов; индикатор отказа; выключатель питания; термостат; температурный ограничитель, чрезвычайная остановка |
Способ управления | Реле |
Питание | |
Питание освещения | 220 вольт 50Гц |
Питание двигателя | 3х380 вольт 50Гц |
Общая мощность | 33 кВт |
Вытяжка: Проходит через канал
Внутренние габариты камеры (ДхВхШ): 17144*8494*6000 мм
Внешние габариты (ДхВхШ) : 17000*6600*5600 мм
Габариты ОСК









