Окрасочно-сушильная камера для грузовиков SPK-12.6.5.
Спецификация оборудования.
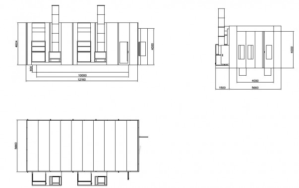
Размеры окрасочной камеры | |||||
Внутренние размеры | 12000x5500х4300mm | Внешние размеры | 12160x5600x4604mm | ||
Вытяжка | Ч-з пол | Направление воздушного потока | Сверху вниз | ||
Вытяжка | |||||
Количество каналов | 2 каналов | Размер канала | 10000х770mm/канал | ||
Количество решеток | 2 рядов решеток | Решетки | полосы из стали, плоские+10мм скрученная арматура из стали, покрытие - оцинковка | ||
Максим. нагрузка | 2.500 кг /м.кв | ||||
Кабина оск | |||||
Конструкция | Каркас силовой | Конструкция из стали | Присутствует | ||
Главная дверь (1 шт) | |||||
Размеры ворот | 4.000х4.000 (ШхВ) | ||||
Материал | Сталь оцинкованная | Разделение камеры | Присутствует | ||
Структура окон | нет | Уплотнение | Теплоизоляционной резиной | ||
Стеновые панели | |||||
Толщина панели,мм | 80 | Толщина стали,мм | 1 | ||
Наполнитель панели | Минеральная вата | Характеристики наполнителя | Негорючий и пропитан антисептиком | ||
Плотность заполнения | 112 кг/м³ | ||||
Сервисная дверь | |||||
Кол-во дверей | Одна дверь | Размер дверей | 800 х 2.000(ШхВ) | ||
Вид двери | выхлопная | Форма и структура окна | овальное, с уплотнением из термоизоляционной резины | ||
Крыша | |||||
Форма и конструкция | Прямая, сэндвич панели 50 мм. | Стальная конструкция | Стальной силовой каркас | ||
Конструкция потолка с закреплением фильтров потолка | Каркас из стали D8 | Покрытие каркаса | +, порошковая покраска | ||
Материал панелей | Минеральная вата | Модель фильтров потолочных | SP -600 G | ||
Освещение в ОСК | |||||
Свет верхний (45 градусов) | 16 плафонов х4 лампы, всего 64 лампы Х 36Вт | Материал каркаса для светильников | Сталь | ||
Свет нижний (встроенный в панели) | 20 плафона * 4 лампы. Всего 80 ламп Х 36Вт |
|
| ||
Выпрямитель | 1 действие для двух ламп |
|
| ||
Группы притока и вытяжки (с воздухообменом 120 крат/ч) | |||||
Расположение генератора | По левой стороне | Конструкция генераторной группы | стальная конструкция в форме квадрата | ||
Обшивка обеих групп | Теплоизоляционные панели | Регулировка потоков воздуха | Автоматическая заслонка | ||
Количество генераторов приточной и вытяжной групп | По 2 генератора | ||||
Поток воздуха притока | Имеет направление - сверху вниз | Воздушный поток вытяжки | Имеет направление - снизу вверх | ||
Характеристика вентилятора притока | Вентилятор центробежный двойного действия | Характеристика вытяжного вентилятора | Вентилятор центробежный двойного действия | ||
Марка - Siemens | Марка - Siemens | ||||
2х 5,5 кВт | Давление 726 Па. | ||||
Давление 780Па. | 1х 7,5кВт | ||||
Пр-ность: 40 000 м3/час | Пр-ность: 40 000 м3/час | ||||
Управление притоком воздуха | Автоматическая заслонка | Управление вытяжным воздушным потоком | Оборудован ручной заслонкой | ||
Подогрев воздуха в оск | |||||
Способ подогрева | вода | Количество теплообменников | 2 шт. | ||
Фильтрация камеры | |||||
Фильтр вытяжки | Конструкция: Стекловолоконный и угольный фильтры | Фильтр притока | Основной фильтр имеет форму кармана; + Потолочный фильтр | ||
Система перемещения маляров в покрасочном боксе | |||||
Лифт площадки | две | Питание | 3х380 Вт/50Гц | ||
Система контроля технологических режимов. IP 65 | |||||
Управление | Реле контроллер | ||||
Панель управления | Окраска; возрастающее тепловое распыление; сушка до 80-ти гр. и регулировка времени, выключатели: освещения и питания; индикатор отказа; термостат; метр часов и чрезвычайная остановка; | ||||
Питание | |||
Питание двигателей | 3х380 Вт/50Гц | Питание освещения | 220 Вт/50Гц |
Общая мощность 39 кВт | |||
Внутренние габариты камеры (ДхВхШ): 12000x5500х4300 mm
Внешние габариты (ДхВхШ) : 12160x5600x4604 mm
Габариты ОСК


