Окрасочно-сушильная камера тупикового типа SPK-18.6.5 РОССИЯ
ОКРАСОЧНО-СУШИЛЬНАЯ КАМЕРА ТУПИКОВОГО ТИПА SPK-18.6.5 РОССИЯ | |
Размеры | |
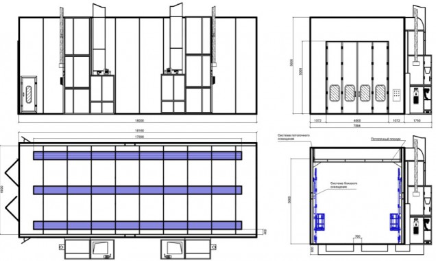
Внутренние р-ры камеры | 18000x6000x5000 мм |
Внешние размеры | 18144x7894x5600 мм |
Направление воздушного потока | Вниз |
Вытяжка | В стенах ОСК |
Вытяжка через приямок | |
Каналы | 3 |
Число рядов решеток | 3 ряда |
Конструкция решеток | Стальные плоские полосы со стальной скрученной арматурой 10 мм толщиной |
Размер каждого канала | 17000х760 мм |
Покрытие решеток | Оцинковка |
Кабина | |
Конструкция кабины | Выпуклая |
Стальная конструкция | Каркас силовой |
Панели стенные | |
Толщина стали в панелях (mm) | 0.55 |
Наполнитель | Вата минеральная |
Плотность | 19 грамм/ м3 |
Толщина Панели (mm) | 80 |
Сервисная дверь кабины | |
Габариты двери (ШхВ) | 800*2000 мм |
Расположение | Справа |
Число дверей | 2 |
Окна | Герметизация резиновыми уплотнителями, окна овальные |
Основная дверь данной ОСК | |
Структура | 2 шт. распашные ворота |
Размеры (ШхВ) | 5000x5000 |
Материал | Сталь оцинкованная |
Крыша | |
- выполнена из стальных оцинкованных пластин | |
Панели | Материал исполнения минеральная вата |
Структура крыши | Прямая |
Потолок | каркас стальной (D8)
|
Стальная конструкция | Силовой каркас |
Потолочные фильтры | SP-600G |
Осветительная система в камере | |
Освещение верхнее | 24 плафона Х 4 лампы = 96 ламп по 36 Вт каждая |
- нижнее | 24 плафона Х 4 лампы = 96 ламп по 36 Вт каждая |
Действие выпрямителя | Одно действие для каждых двух ламп |
Каркас крепления для светильников | Из стали |
Общая мощность | 6 912 Вт |
Параметры группы притока/ вытяжки | |
Размещение генераторов | Справа |
Число генераторных групп вытяжки /притока | По два |
Параметры 2-ного центробежного вентилятора в приточной группе | |
Мод. вентилятора | Siemens 4.5M |
Производит-ность (в куб. /час) | 74 000 |
Мощ-сть , кВт | 2*5.5 |
Давление | 780Па |
Параметры 2-ного центробежного вентилятора с ручной заслонкой в вытяжной группе фильтров | |
Модель | Siemens-710-H |
Производ-ность (в куб.м/час) | 74 000 |
Мощ-сть, кВт | 1*7,5 |
Давление | Давление 726Па. Привод ременной |
Система фильтрации | |
Конструкция фильтра притока | Фильтр потолка и основной фильтр |
Хар-ка фильтра вытяжки | Фильтры: угольный и стекловолоконный |
Система подогрева | |
Способ подогрева | 1. Газовая/ дизельная горелка, 2. паровой/, водяной теплообменник с догревом |
Модель | R5 |
Количество | 2 теплообменника |
Производительность, кКал/час | 330.000 х 2 |
Конструкция теплообменника | Антивзрывчатое отверстие и Мультицикл |
Дымоход | - |
Контроль технологических режимов | |
На панели управления расположены следующие переключатели: | - Окрашивание; - метр часов; - индикатор отказа; -сушка до 80°С, - регулировка времени сушки; - выключатель освещения; - термостат; - нарастающее температурное распыление; - выключатель питания; - чрезвычайная остановка |
Управление | Реле |
Питание | |||||
Эл-питание двигателя | 380 вольт * 3, 50Гц | Электропитание освещения | 220 вольт 50 Гц | ||
Мощность общая 46,6 кВт | |||||
Система пожаротушения Буран50 | |||||
Срабатывание в автоматическом режиме | Порошковая система пожаротушения | ||||
Вытяжка: В стенах ОСК
Внутренние габариты камеры (ДхВхШ): 18000x6000x5000 мм
Внешние габариты (ДхВхШ) : 18144x7894x5600 мм
Габариты ОСК


