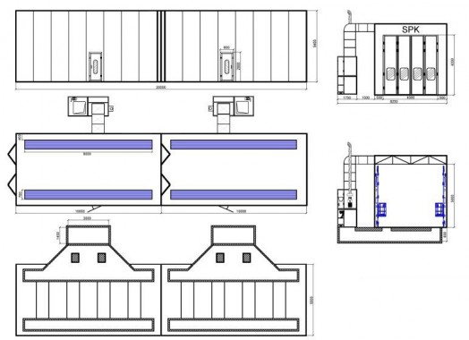
Окрасочно-сушильная камера тупикового типа SPK-22.5.5 Россия
ОКРАСОЧНО-СУШИЛЬНАЯ КАМЕРА ТУПИКОВОГО ТИПА SPK-22.5.5 РОССИЯ | |
Размеры | |
Внутренние р-ры камеры | 22000x5000x5000 мм |
Внешние размеры | 22200x8250x5400 мм |
Направление воздушного потока | Исходит сверху вниз |
Вытяжка | Стены камеры |
Боковая вытяжка | |
Каналы | 4 |
Колич-во решеток | 4 ряда |
Конструкция решеток | плоские полосы из стали со скрученной стальной арматурой толщиной 10 мм |
Покрытие решеток | Оцинкованное покрытие |
Максимальная нагрузка | 3000 кг/кв.м |
Кабина | |
Конструкция кабины | Выпуклая |
Наличие стальной конструкции | Каркас силовой |
Панели стенные | |
Толщина стали в панелях (мм) | 0.60 |
Наполнитель | Вата минеральная |
Плотность | 19 гр/куб.м |
Толщина Панели (мм) | 80 |
Сервисная дверь кабины | |
Габариты двери (ШхВ), мм | 800х2000 |
Расположение | Справа |
Число дверей | две |
Структура окон | Герметизация резиновыми уплотнителями, окна в форме овала |
Основная дверь камеры | |
Структура | Распашные ворота, 2 шт. |
Размеры (ШхВ) | 5000х5000 |
Материал | Сталь оцинкованная |
Система разделения камеры |
|
Крыша | |
Исполнение – стальные пластины с оцинковкой | |
Панели | Материал – минеральная вата |
Структура крыши | Прямая |
Конструкция потолка | каркас стальной (D8)
|
Структура крыши | Силовой каркас |
Потолочные фильтры | Мод. SP-600G |
Осветительная система камеры | |
Освещение верхнее | 28 плафона Х 4 лампы |
- нижнее | 24 плафона Х 4 лампы = 96 ламп по 36 Вт каждая |
Действие выпрямителя | Для каждых двух ламп одно действие |
Каркас крепления | Сталь |
Общая мощность (Вт) | 7 488 Вт |
Параметры группы притока/ вытяжки | |
Размещение генераторов | Справа |
Число генераторных групп вытяжки и притока | По 2 |
2-ной центробежный вентилятор в приточной группе | |
Модель вентилятора | Siemens 4.5M |
Производит-ность (в м³/час) | 68 000 |
Мощ-сть , кВт | 2*5.5 |
Давление | 780Па |
2-ной центробежный вентилятор с ручной заслонкой в вытяжной группе | |
Модель | Siemens-710-H |
Производ-ность (в куб.м/час) | 68 000 |
Мощ-сть, кВт | 1х7,5 |
Давление | Давление 726Па. |
Система фильтрации | |
Конструкция фильтра притока | Потолочный и главный фильтры |
Конструкция фильтра вытяжки | Фильтры: угольный и стекловолоконный |
Тепловая система | |
Способ подогрева | Газовая |
Модель | R5 |
Количество | 2 теплообменника |
Производительность, кКал/час | 430.000 х 2 |
Конструкция теплообменника | Антивзрывчатое отверстие и Мультицикл |
Дымоход | Отсут. |
Система контроля технологических режимов | |
На панели управления расположены следующие переключатели: | - Окрашивание; - нарастающее температурное распыление; - выключатель освещения; -сушка до 80-и°С, - индикатор отказа; - регулировка времени сушки; - метр часов; - чрезвычайная остановка - термостат; - выключатель питания; |
Управление | Реле |
Питание | |||||
Эл-питание двигателя | 380 вольт X 3, 50Гц | Электропитание освещения | 220 вольт 50 Гц | ||
Мощность общая 46,6 кВт | |||||
Система перемещения маляров-операторов | |||||
Подъемно-передвижные лифт площадки | 2 шт. | ||||
Питание | 380Вольт | ||||
Система пожаротушения Буран 50 | |||||
срабатывание Автоматическое
| Порошковая система пожаротушения | ||||
Внутренние габариты камеры (ДхВхШ): 22000x5000x5000 мм
Внешние габариты (ДхВхШ) : 22200x8250x5400 мм
Габариты ОСК



