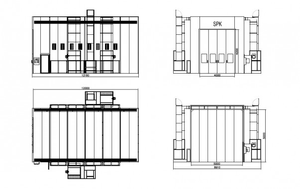
Покрасочно-сушильная камера для грузового транспорта SPK-12х5х5
1. Спецификация оборудования. Камера для окраски.
Размеры | |||
- внутренние | 12000x5000х5000 mm | ||
- внешние | 12180x8910x5500 mm | ||
Воздух направляется | ↓ | ||
Вытяжка ЧЕРЕЗ ПОЛ | |||
Каналы, число (шт) | 2 | ||
Размер 1-го канала | 11480х768 mm | ||
Решетки | включают в конструкцию: скрученную арматуру, произведенную из стали, стальные полосы плоские | ||
Ряды решеток | два | ||
Покрытие | оцинкованное | ||
Характеристики кабины | |||
Каркас | силовой | ||
Стальная конструкция | Есть | ||
Дверь основная (1 дверь) | |||
Габариты ворот (Ш * В) | 4000 * 4200 | ||
Исполнение двери | сталь оцинкованная | ||
Уплотнение двери | резиной с теплоизоляцией | ||
Разделение камеры | Да, разделена | ||
Окна | Прямоугольной формы | ||
Панели стеновые | |||
Толщ. панели/стали в панели (в mm) | 80 / 0.6 | ||
Наполнитель в панелях | Минер. вата (с антисептиком и негорючая) | ||
Плотность наполнителя ваты минеральной | 112 кг на 1 куб.м | ||
Дверь сервисная | |||
Размер / кол-во дверей, шт. | 800 х 2000 / 2 | ||
Вид двери | выхлопная | ||
Описание окна | Для помещения установлено одно прямоугольное окно, имеющее уплотнение, выполненное из резины с теплоизоляцией | ||
Описание крыши | |||
Форма | Прямая | ||
Окраска каркаса | Порошковая | ||
Каркас и покрытие каркаса | Стальной силовой с порошковой покраской | ||
Конструкция потолка с фильтрами на потолке/ мод. фильтров | Каркас стальной, сталь D8/ SP-600G | ||
Материал | Лист стальной | ||
Освещение ОСК | |||
свет верхний (45 гр.) | по четыре лампы в 16-ти плафонах | ||
Каркас для светильников | из стали | ||
свет нижний (в панелях) | по две лампы в 16-ти плафонах | ||
Выпрямитель | для 2-ух ламп – действие одно | ||
Приточная + вытяжная группы | |||
Конструкция генераторной группы/ материал | Квадратная / материал - сталь | ||
Положение генератора | с обеих сторон | ||
Регулирование воздуха | Автоматическая заслонка | ||
Обшивка | из теплоизоляционных панелей | ||
Количество генераторов притока | по 2 шт.
| ||
Число генераторов вытяжки | |||
Направление воздуха притока/ вытяжки | Сверху вниз и снизу вверх | ||
Вентиляторы притока/ вытяжки | В обеих группах центробежные 2-ные вентиляторы | ||
Мощность (кВт): 2х4/ 1х6 | |||
Производительность ( м³/ч): 42 000 | |||
Давление (Па) 760 / 731 | |||
Управление притоком воздуха/ вытяжкой | Автоматическая / ручная заслонка | ||
Обогрев воздуха | |||
Число теплообменников, шт./структура | 2/ мультицикл и антивзрывчатое отверствие | ||
Подогрев | Дизельная горелка | ||
Модель горелок | RС | ||
Мощ-сть | 458 кВт расход от 8 до 22 л/час | ||
Фильтр в группе вытяжки | Стекловолоконный и предварительный фильтры | ||
Фильтр в группе притока | Основной карманной формы и Потолочный фильтры | ||
Передвижение операторов-маляров в Камере окраски для металла | |||
Лифт-площадки, шт. | две | ||
Питание | 3 х 380Вт/ 50Гц | ||
Автоматическая Система пожаротушения в камере | |||
Модель системы | Буран 50КД | ||
Срабатывание | автоматическое | ||
Тушение |
| ||
Контроль и управление технологическими режимами. IP 65 | |||
Переключатели, расположенные на Управляющей панели | Окрашивание; тепловое распыление нарастающее; чрезвычайная остановка и метр часов, термостат; выключатель питания; сушка с регулировкой времени; выключатель света; индикатор отказа; | ||
Управление - Реле |
| ||
Эл-питание | ||
1. Питание двигателя | 3х 380Вт/ 50Гц | |
2. Питание освещения | 220Вт/ 50Гц | |
Общая мощность 9 - 34 кВт |
| |
Вытяжка: Через пол
Внутренние габариты камеры (ДхВхШ): 12000x5000х5000 мм
Внешние габариты (ДхВхШ) : 12180x8910x5500 мм
Габариты ОСК








